🏛️ Listed on the National Register of Historic Places — June 26, 2024 View National Register Record →

Isabel and Orrin Bacon-Johnson House

Finest Example of Arts and Crafts Architecture in Neenah
1002 East Forest Avenue · Neenah, Wisconsin

A Remarkable Survivor

One of the last unaltered Arts and Crafts houses in Wisconsin

The Isabel and Orrin Bacon-Johnson House is a remarkable example of an unaltered Arts and Crafts house built in Neenah in 1918. The number of Arts and Crafts houses built in Wisconsin is relatively small, and with only five such houses listed in the Architecture and History Inventory for Neenah, the Bacon-Johnson House is one of the last Arts and Crafts survivors of the city.

The house was built for a fascinating woman—Isabel Bacon Johnson—who had three great passions in her life: theater and entertainment, French fine arts, and automobiles. She designed her home to accommodate all of these passions, from the elegant piano room that once held a Louis XIV Steinway Grand to the innovative attached three-car heated garage with direct access to her private sitting room.

Once known as the "Show Place in the Valley," this unaltered Arts and Crafts treasure represents a unique chapter in Neenah's architectural heritage. In 2024, its significance was officially recognized with individual listing on the National Register of Historic Places.

West elevation of the Bacon-Johnson House
West elevation featuring the Georgian Revival entryway

"The residence, once called the 'Show Place in the Valley,' contains many items of rare interest and costly decoration."

Isabel Bacon Johnson

A woman of three passions and three husbands

Who Built This House?

The remarkable life of Isabel Bacon Johnson (1870–1950)

Isabel Bacon Johnson was an interesting woman with three great passions in her life: theater and entertainment, French fine arts, and automobiles. She designed her house to accommodate all of these interests—and she had the means to do so, as she also had three husbands in her life, each bringing her greater social standing and wealth.

Born into the prominent Bacon family of Wisconsin, Isabel lived a life worthy of the stage. Her love of theater led her to spend much time in New York City, where she became a prominent socialite with strong interests in the performing arts. This passion ultimately led her to her third husband—the celebrated Broadway actor Orrin Johnson.

As a woman ahead of her time, Isabel was an avid driver who insisted on having her sitting room directly connected to the garage—an unusual arrangement that placed her close to both her staff and her beloved automobiles. The typical practice of the era was for garages to connect to servants' areas, not to the living quarters of the home's owner.

Portrait of Isabel Bacon Johnson
Mrs. Orrin Johnson - Picture by the 5th Avenue Campbell Studios - Sunday rotogravure of the NY Times
Act I

The Banker's Wife

Racine, 1889

Isabel married her first husband, Henry Rogers, a banker. Seven years later, he petitioned for and was granted a divorce in October 1896.

Act II

The Timber Heiress

Neenah, 1900

She remarried one of the wealthiest men in Wisconsin, Charles R. Smith, a widower by 1895 and President of Menasha Woodenware Company. After his death in 1916, she inherited a third of his fortune—$1 million (equivalent to $28 million today).

Act III

The Actor's Wife

New York City, 1918

She married the celebrated Broadway actor Orrin Johnson, who had played numerous leading roles on stage and in early silent films, including a remarkable D'Artagnan in the first production of The Three Musketeers.

Orrin Johnson (1866–1943)

Orrin Johnson was a celebrated Broadway actor known for his romantic leading roles. A protégé of the legendary producer David Belasco, he performed alongside Maude Adams and was an early silent film star. His portrayal of D'Artagnan in The Three Musketeers was particularly acclaimed.

The wedding of the wealthy widow and the matinee idol made headlines in The New York Times on June 27, 1918, under the banner "Rich Widow Weds Orrin Johnson, Actor."

Although a prominent New York actor, Orrin eventually "aged out" of leading man roles and failed to make a successful transition to Hollywood silent films. He spent most of his later years in Neenah as a retired actor, enjoying the beautiful home Isabel had created for them. He died in 1943, and Isabel continued to live in the house until her death in 1950.

Portrait of Orrin Johnson
Orrin Johnson in "Haddon Hall" — Rotograph Series
Picture Show cover featuring Orrin Johnson as D'Artagnan, December 2, 1922
Picture Show cover featuring Orrin Johnson as D'Artagnan — December 2, 1922
Moving Picture World ad for The Three Musketeers with Orrin Johnson, July 30, 1921
Moving Picture World ad for The Three Musketeers — July 30, 1921
New York Times wedding announcement
The New York Times — Thursday, June 27, 1918

Isabel's Ancestry

Pioneer heritage and Revolutionary War lineage

Isabel Bacon Johnson descended from early American settlers who helped shape Wisconsin's history. Her family tree includes Revolutionary War patriots, California Gold Rush adventurers, Civil War veterans, and pioneer settlers who established some of Wisconsin's earliest communities.

Direct Paternal Lineage

Great-Great-Grandfather

John Bullen III

1747–1824 • Brimfield, Massachusetts → New York

Revolutionary War Patriot
Served in the American Revolution. Listed in the DAR Lineage Book (Vol. 46, 1903) and "Abstract of Graves of Revolutionary Patriots." Died in New York. Married Mary Whitecomb (1751–1828).

Great-Grandfather

Hudson Bacon Sr.

1798–1873 • Granby, Connecticut → Green Bay, Wisconsin

Wisconsin Pioneer
Born in Connecticut, arrived in Wisconsin Territory by 1840—among the earliest settlers. Established the family in Kenosha before Wisconsin achieved statehood (1848), and died in Green Bay, Wisconsin. Married Mary Bullen (1807–1841).

Grandfather

John Bullen Bacon

1831–1891 • Hannibal, New York → Mt. Pleasant, Wisconsin

Civil War Veteran & Gold Rush Prospector
Journeyed to California during the 1852 Gold Rush. Later served in the Civil War and was a member of the Grand Army of the Republic (GAR). Died in 1891 in Mt. Pleasant, Wisconsin. Married Elizabeth M. Clausen (1848–?).

Subject

Julia Belle "Isabel" Bacon

December 1870–August 30, 1950

Born in Saugatuck, Allegan County, Michigan. Raised in Mt. Pleasant, Racine County, Wisconsin. Married three times; built the Bacon-Johnson House in 1918 with her third husband, actor Orrin Johnson.

Isabel Through the Census Records

1870 Born December 1870 in Saugatuck, Allegan County, Michigan
1880 Age 9, living with family in Mt. Pleasant, Racine County, Wisconsin
1889 Married Henry Joseph Rogers in Racine, Wisconsin (September 11, 1889)
1896 Divorce from Henry Rogers finalized in October 1896. Mrs. Isabel Rogers opened a dancing school at Michelson's Hall in Neenah on November 23, 1896.
1900 Divorced, living with her mother in Neenah Ward 1, Winnebago County, Wisconsin. Later that year married Charles Robinson Smith (June 6, 1900).
1905 Wisconsin State Census: Living with Charles R. Smith in Neenah
1910 Living with Charles R. Smith in Neenah Ward 3; Charles listed as "President" (of Menasha Wooden Ware)
1916 Charles R. Smith dies in New York City (May 12, 1916), leaving Isabel a wealthy widow with approximately $1 million inheritance
1918 Married actor Orrin Johnson at 570 Park Avenue, Manhattan (June 25, 1918). News reported in papers from Rochester to Fargo
1920 Living with Orrin Johnson in Manhattan Assembly District 15, New York City
1930 Living with Orrin Johnson at 1002 East Forest Avenue, Neenah—the Bacon-Johnson House
1950 Died August 30, 1950 in Neenah. Buried in Neenah, Winnebago County, Wisconsin

Her Three Husbands

Henry Joseph Rogers

Married 1889 • Divorced October 1896

Born March 18, 1860 in Lake Geneva, Wisconsin. Isabel's divorce from Rogers was finalized in October 1896, and she opened her dancing school the following month, in November 1896. He later remarried and lived in Racine until his death on August 27, 1939.

Charles Robinson Smith

Married 1900 • Died 1916

Born January 14, 1855 in Menasha, Wisconsin. Widowed by 1895, he later married Isabel in 1900. President of Menasha Wooden Ware Company, he left Isabel approximately $1 million (equivalent to $28 million today). He died May 12, 1916 in New York City.

Orrin Johnson

Married 1918 • Died 1943

Born December 1, 1866 in Louisville, Kentucky. Famous Broadway and film actor who played D'Artagnan in "The Three Musketeers." Built the Bacon-Johnson House with Isabel. His obituary appeared in The New York Times. Died November 24, 1943.

Legacy

Isabel's only child was Ronald Rogers (1890–1942), from her first marriage. Her two grandchildren were Ronald Rogers Jr. (1925–2006) and Doris Rogers Murray-Kuhns (1929–2018). Doris Rogers Murray-Kuhns authored the memoir "Time Was: Some Memories from Eight Decades", which contains invaluable family photographs and stories, including a 1937 Christmas photo showing the piano room exactly as it appears today.

Time Was: Some Memories from Eight Decades by Doris Rogers Murray-Kuhns

"Time Was: Some Memories from Eight Decades" by Doris Rogers Murray-Kuhns

History

From Victorian cottage to Arts and Crafts masterpiece

A Rich History

The evolution of 1002 East Forest Avenue

1900

Land Purchase

Three months after her wedding to Charles R. Smith, Isabel purchased land on East Forest Avenue on Doty Island, at the corner of 9th Street.

1901

Elizabeth M. Bacon House

Isabel had a house built for her widowed mother, Elizabeth Bacon. It was a two-story late Queen Anne style house with a steeply-pitched intersecting gable roof, a first-story bay window, and a wide wrap-around porch with turned posts and an open patterned balustrade.

Original Elizabeth M. Bacon House
1916

Charles Smith's Death

Charles R. Smith passed away, leaving Isabel a third of his fortune—approximately $1 million ($28 million in today's dollars). She continued her socialite lifestyle, spending much time in New York City.

1918

Marriage to Orrin Johnson

Isabel married Broadway actor Orrin Johnson at her Park Avenue home in New York City. The wedding made headlines in The New York Times. She immediately began planning the reconstruction of her mother's house to accommodate her new life with Orrin.

1919

The Bacon-Johnson House is Born

The house was completely rebuilt in the Arts and Crafts style with Georgian Revival elements. Nothing from the original 1901 appearance remains on the exterior. The new design featured expansive stucco surfaces, extensive fenestration with leaded glass, an innovative open floor plan, and the groundbreaking attached three-car heated garage.

The rebuilt Bacon-Johnson House
1934

City Appraisal

The City of Neenah conducted a detailed appraisal, documenting the home's exceptional features including four fireplaces, beamed ceilings, the heated garage with beadboard ceiling, and detailed room-by-room descriptions. The footprint recorded in 1934 is identical to the current one.

1943

Orrin Johnson's Death

Orrin Johnson passed away at the Neenah home. His obituary appeared in The New York Times on November 25, 1943.

1950

Isabel Johnson's Death

Isabel Bacon Johnson passed away, having lived in the house for over three decades. The estate would soon be liquidated.

1953

"Show Place in the Valley"

The estate was liquidated at public auction at the Knights of Pythias Auditorium in Appleton. The residence was advertised as the "Show Place in the Valley," containing items of rare interest including the Louis XIV Steinway Parlor Grand piano that Charles Smith had purchased and Isabel had brought to the Bacon-Johnson House.

1953 Estate Auction Advertisement
2005

Historic District Listing

The house was listed as a contributing property in the East Forest Avenue Historic District on the National Register of Historic Places.

2024

National Register of Historic Places

On June 26, 2024, the Isabel and Orrin Bacon-Johnson House was individually listed on the National Register of Historic Places, recognizing its exceptional architectural and historical significance as the finest unaltered Arts and Crafts house in Neenah.

Architecture

Arts and Crafts simplicity with period revival elegance

Arts and Crafts Design

A rupture in style with the sophisticated Victorian period

The Arts and Crafts architecture was a rupture in style with the sophisticated Victorian period—a reaction against mass production. As a result, Arts and Crafts houses look simple, with very little decoration, but elegant with period revival references. The Bacon-Johnson House perfectly embodies this philosophy.

West elevation

West Elevation

Features Arts and Crafts simplicity with expansive stucco on the façade and shingled multiple-gable roof. Little decoration aside from well-placed multi-pane windows and a prominent chimney.

Georgian Revival entryway

Georgian Revival Entryway

The house features Arts and Crafts elegance with its Georgian Revival entryway—a multi-light door flanked by sidelights and decorated with a full pediment supported by round columns.

South elevation

South Elevation

Like the west elevation, features expansive stucco, shingled roof, and a second prominent chimney. Expansive fenestration with French doors leading to the large south patio.

East elevation

East Elevation

Multiple outside access points integrate interior and exterior spaces—a key Arts and Crafts concept of interaction with the outdoors.

Front terrace

Expansive Terraces

The house illustrates the Arts and Crafts concept of interaction with the outdoors through expansive fenestration and French doors leading to large terraces on the west and south sides.

Original glazed and hinged doors on the E. Forest Avenue side

Historic Three-Car Garage

Remarkable for being the first three-car attached garage built in Neenah, originally built with the house. Features doors on both sides for access to both streets.

The house counts more than 100 windows and 5 exterior doors—testament to the Arts and Crafts emphasis on light and connection to the outdoors.

The Garage: A Groundbreaking Innovation

The garage itself is remarkable for several reasons:

First of its kind: It was the first three-car attached garage built in Neenah and dates to 1918.

Dual access: It features doors on both sides, providing access to both East Forest Avenue and 9th Street.

Originally heated: The garage was heated from the beginning—a luxury for the era—with the small closet containing the heating furnace.

Exceptional integrity: The interior retains its original built-in cabinets, beadboard ceiling, and wooden workshop. Only the double-wide overhead door on one bay has been modified.

Direct connection to living quarters: Most unusually, the garage connects directly to Isabel's sitting room—reflecting her love of automobiles and desire to be close to her cars. The typical practice was for garages to connect to servants' areas, not the owner's living spaces.

Original glazed and hinged doors on the E. Forest Avenue side
Original glazed and hinged doors on the E. Forest Avenue side

Interior

Arts and Crafts open concept with Georgian Revival elegance

First Floor

Innovative open floor plan with interconnected rooms

On the interior, the Bacon-Johnson House features the innovative Arts and Crafts concept of open space and interaction with the outdoors. On the first floor, all rooms except the sitting room are interconnected with seven multi-paned bi-fold French doors. Like the exterior, the interior features the combined Arts and Crafts simplicity and Georgian Revival elegance.

Reception Hall & Main Living Areas

Reception Hall
Reception Hall
Piano Room
Piano Room (Music Room)
Sunken Solarium
Sunken Solarium
Library
Library

Reception Hall

A simple Arts and Crafts box-beamed ceiling combines with an elegant classic Georgian Revival staircase. The open-floor concept is immediately apparent with interconnected rooms flowing from the hall to the piano room, solarium, library, and dining room.

Piano Room

A sophisticated space with classic bracketed and dentiled cornice and a Georgian Revival fireplace with onyx surround. French doors lead to the front terrace. This room once housed Isabel's prized Louis XIV Steinway Grand Piano.

Sunken Solarium

Contrasts the piano room with its simple Arts and Crafts box-beamed ceiling and brick-faced fireplace. Expansive fenestration with French doors leads to the south patio.

Library

Features a combination of sophisticated egg-and-dart and dentiled cornice and leaded windows with simple brick-faced fireplace and built-in cabinets—the Arts and Crafts philosophy of combining craftsmanship with classical references.

Library with Arts and Crafts brick-faced fireplace and built-in cabinets
Library with Arts and Crafts brick-faced fireplace and built-in cabinets

Dining & Service Areas

Dining Room
Dining Room
Kitchen
Kitchen
Sitting Room
Sitting Room
Garage Interior
Access to Garage

The dining room reveals an Arts and Crafts design with its batten-paneling walls in standard two-thirds height and box-beamed ceiling combined with classic leaded windows. The kitchen is the only room on the first floor that has been remodeled (in 2004), though the original leaded glass transom windows remain.

The private sitting room is innovative for its unusual direct access to both the kitchen (on the right) and the garage (on the left)—designed for Isabel's practical purposes to be close to her staff and to her automobiles. This was highly unusual for the era, when garages were typically connected to servants' areas rather than living spaces.

The interior of the garage is remarkable for being an original heated garage with direct connection to Isabel's sitting room, original built-in cabinets, and beadboard ceiling.

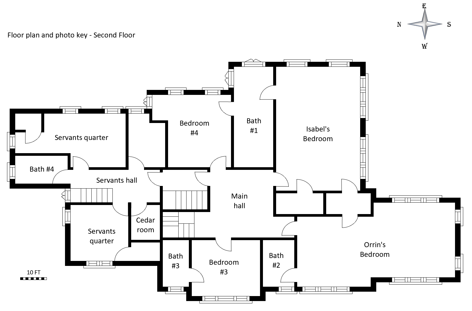
Second Floor

Interconnected bedrooms with innovative servants' quarters

The second floor features the same Arts and Crafts characteristics as the first floor: interconnected bedrooms, massive fenestration, and period revival elements. It is also innovative for its spacious servants' quarters, which are located on the same floor as the owners' quarters (instead of the usual placement in the attic) and represent a third of the floor space.

Owner's Quarters

Isabel's Bedroom
Isabel's Bedroom
Orrin's Bedroom
Orrin's Bedroom
Leaded glass closet
Connecting Dressing Area
Original bathroom
Original Bathroom

The owners' quarters feature a central hall with an interesting skylight, two guest bedrooms, and two master bedrooms interconnected by a leaded glass closet/dressing area. Isabel's bedroom on the east side features eight windows and a Georgian Revival fireplace. Orrin's master bedroom has expansive fenestration with eleven windows. One bathroom remains completely original and is preserved as the original bathroom.

Servants' Quarters

Service stairs
Service Stairs
Servants hall
Servants' Hall
Connection to attic and main hall
Connection to Attic and Main Hall
Attic access
Attic with Skylight

On the north side of the floor, the servants' quarters include two bedrooms, one bathroom, a cedar closet, and a linen closet. Two service stairs lead to the kitchen and the attic, and a back hall connects to the owners' quarters. The attic features direct access and the multi-paned skylight that illuminates the central hall below.

Architectural Details

Original features preserved for over a century

Leaded glass windows

Leaded Glass Windows

Extensive leaded glass windows throughout the dining room, library, and dressing areas showcase fine Arts and Crafts craftsmanship.

Georgian fireplace

Four Original Fireplaces

All four fireplaces remain intact: Georgian mantlepieces with onyx surrounds in the piano room and bedroom, Arts and Crafts brick-faced in the solarium and library.

Georgian staircase

Georgian Revival Staircase

The elegant main staircase features classic Georgian Revival details with turned balusters and a graceful curve.

Central skylight

Central Skylight

A multi-paned skylight with frosted glass illuminates the central hall from the attic level—an innovative feature for natural light.

Built-in closets

Original Built-in Closets

The vestibule retains its original built-in closets with period hardware, demonstrating the Arts and Crafts emphasis on integrated design.

Decorative moldings

Decorative Moldings

Sophisticated bracketed and dentiled cornices, egg-and-dart moldings, and box-beamed ceilings throughout demonstrate the period revival elegance.

A Family Memory

Memories from Isabel's granddaughter Doris Rogers Murray-Kuhns (1929–2018)

Christmas at Nana's house, 1937
"Joyeux Noel – the all-silver Christmas tree with real candles at Nana's house" — 1937

We were fortunate to find a book written by Isabel's granddaughter Doris Rogers Murray-Kuhns, titled "Time Was: Some Memories from Eight Decades," which contains precious details about her grandmother "Nana's" house.

The 1937 photograph of the Christmas tree shows the piano room with its sophisticated bracketed and dentiled cornice and the panel look of the walls with muntins—details that remain virtually unchanged today.

This remarkable preservation allows us to directly compare the house as it appeared in family photographs from the 1930s with its current state, confirming the exceptional integrity of the Bacon-Johnson House.

Floor Plans

Innovative Arts and Crafts open concept design

First floor plan
Second floor plan

Open Concept

7 bi-fold French doors interconnect all main rooms

100+ Windows

Expansive fenestration for natural light

Attached Garage

First 3-car attached garage in Neenah

Direct Access

Sitting room connects to garage

Dual Masters

Two master bedrooms interconnected

Staff Quarters

Spacious servants' area on 2nd floor

Architectural Significance

The finest unaltered Arts and Crafts house in Neenah

Comparative Analysis

Why the Bacon-Johnson House stands apart

Other examples of the Arts and Crafts style in Neenah are limited. The local architectural context for the Bacon-Johnson House is known to exist in only one other comparable high-style residential property: the Edward and Vina Beals House at 220 North Park Avenue, designed by A. C. Eschweiler of Milwaukee in 1911 and listed on the National Register in 2008.

Like the Bacon-Johnson House, the Beals House is low to the ground and displays Arts and Crafts features such as extensive stucco on the façade with extensive fenestration and minimal decorative elements. However, since its nomination, the Beals House has undergone significant alteration of its historic fabric.

Bacon-Johnson House

  • Windows: All original wood windows intact
  • Fireplaces: All 4 original fireplaces intact
  • Garage: Original with glazed hinged doors
  • Interior: Virtually unaltered since 1918
  • Floor Plan: Original layout preserved
Exceptional Integrity

Other Neenah Arts & Crafts Houses

  • Beals House: Windows replaced, garage added, fireplaces replaced, sliding door added
  • Thompson House: Moved in 1948, re-sided, two additions, gabled roof added
  • Schneller House: Windows downsized, roof altered with vented addition
  • Pfeiffer-Kimberly House: Windows redesigned, front porch likely removed
Significantly Altered

The Bacon-Johnson House still features its original three-car attached, heated garage and all of its original wood windows. Inside, all four fireplaces remain intact and original.

Other Arts and Crafts examples identified in the Wisconsin Architecture and History Inventory are primarily middle-class variants that have undergone significant alterations:

The Veneta Thompson House (505 East Wisconsin Avenue) was moved to its present location from Pine Street in 1948 and has since undergone partial re-siding and two additions. The property's façade was significantly altered by the construction of a second story above a sun room with a gabled roof in place of a flat roof.

The Schneller House (115 Washington Avenue) has had its original window openings downsized with modern fenestration, and the original flat surface of the hipped roof has been surmounted by a vented addition with a gable roof.

The Pfeiffer-Kimberly House (616 East Forest Avenue) has undergone replacement and redesign of windows and the likely removal of a front porch.

In this context, and because of its interior and exterior integrity, the Bacon-Johnson House is a remarkable and unique example of an unaltered Arts and Crafts construction in Neenah.

National Register of Historic Places

On June 26, 2024, the Isabel and Orrin Bacon-Johnson House was officially listed on the National Register of Historic Places, recognizing its exceptional significance as a distinctively sophisticated and intact example of Arts and Crafts architecture.

The house retains a high degree of integrity on both the exterior and interior, exhibiting a stately simplicity combined with period revival references both inside and out that is characteristic of the Arts and Crafts period of construction.

The architectural significance is further enhanced by an Arts and Crafts open floor concept and by an inspired floorplan of public and functional rooms that reflect the taste, sophistication, and practicality of Isabel Johnson—the woman who directed both the construction of the house and the groundbreaking attached three-car garage.

As the finest unaltered Arts and Crafts house in Neenah with the first attached three-car garage, the Isabel and Orrin Bacon-Johnson House now stands among Wisconsin's most treasured historic properties.

Listed on the National Register of Historic Places June 26, 2024
View Official National Register Record →